Makléř: Bašta Kristýna
Telefon: 538 728 ...
E-mail: bonusbr ...
Zobrazit celý kontaktTelefon: 538 728 645
E-mail: bonusbrno@century21.cz
Nemovitost nabízí
CENTURY 21 Bonus Brno
Křenová 479/71, Brno
www.century21.cz/kancelar-bonus-brno
Zobrazit kontakt na RK737 199 849
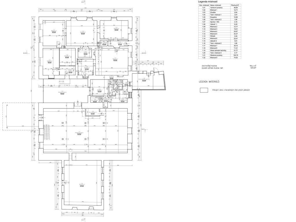
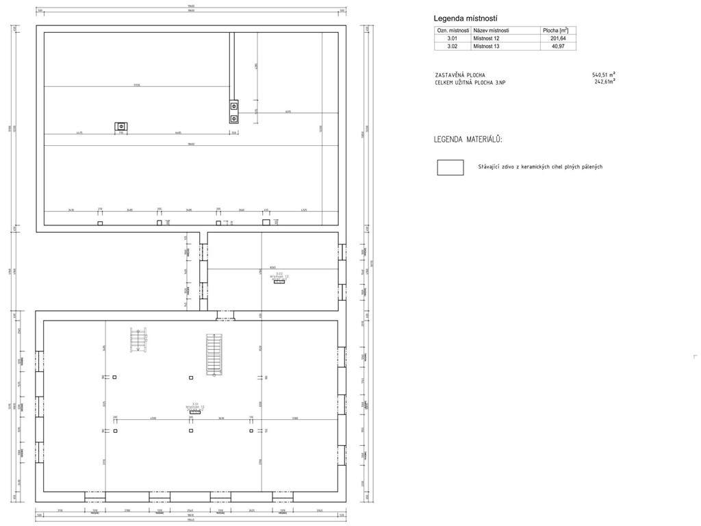
Sníte už dlouho o vlastním projektu a zatím jste nenašli tu správnou příležitost? Hledáte místo, kde můžete naplno rozvinout svou vizi a vytvořit něco opravdu výjimečného? Tak právě vám nabízím ke koupi pozemek o celkové výměře 6 094 m2 v obci Nové Mlýny, na kterém se nachází soubor stávajících staveb - původní historický mlýn a objekt bývalé restaurace, která prošla již značnou rekonstrukcí. Dle schvalovaného územního plánu je možné jej využít pro bytovou výstavbu či sociální služby. Pozemek představuje mimořádnou příležitost pro investory i developery, kteří hledají prostor pro realizaci vlastního projektu v atraktivní lokalitě jižní Moravy. Stávající budovy je možné využít k rekonstrukci a dalšímu rozvoji, čímž lze navázat na historický charakter místa a vytvořit projekt s jedinečnou atmosférou a navíc ušetřit značnou část finančních prostředků a času. Tato varianta navíc umožňuje čerpání dotačních programů. Zároveň se nabízí i varianta odstranění stávajících staveb a realizace zcela nového záměru dle vlastních představ. Velkorysá výměra pozemku poskytuje dostatek prostoru pro vznik rezidenčního projektu, zařízení pro seniory se službami nebo jiného komerčního využití. Lokalita Nových Mlýnů patří dlouhodobě mezi vyhledávané oblasti díky své poloze v blízkosti vodní nádrže a chráněné krajinné oblasti Pálava. Kombinace přírody, klidu a dobré dostupnosti do Mikulova, Hustopečí i Brna vytváří ideální podmínky jak pro bydlení, tak pro investiční záměry. Tato nabídka je skvělou volbou pro ty, kteří chtějí realizovat projekt s přidanou hodnotou - ať už s využitím stávajících staveb, nebo formou zcela nové výstavby. Pro více informací nebo domluvení prohlídky mě neváhejte kontaktovat.
Křepice u Hustopečí vinice 4 085 m2 dobrý udržovaný stav vinice
Nabízíme Vám k prodeji vinici o celkové výměře 4 085 m2. Vinice se nachází přímo v obci Křepice v mírně svažitém terénu se západní orientací, v…
Prodej sadu, vinice 3394 m2 Brumovice
Prodej dvou spojených pozemků o celkové výměře 3394 m2. Pozemky leží nedaleko obce a jde současně o kus vinice, pole a lesu. Přístup je možný po…