Aktuálně můžete v lokalitě Brno vybírat z nabídky 63 pozemků.
Přehled nemovitostí: prodej pozemky > stavební pozemky Zpět na přehled nabídek

PRODEJ STAVEBNÍHO POZEMKU - BRNO JEHNICE, Brno

401 m2

BK232333

Cena: na dotaz v RK
Poznámka k ceně: volejte makléři, včetně DPH, včetně poplatků, včetně provize, včetně právního servisu, cena k jednání 1

Poslat dotaz k nabídce
Zásady používání osobních údajů

Prodejce

Makléř: Francová Ludmila

Telefon: 608 663 ...

E-mail: francov ...

Zobrazit celý kontakt

Nemovitost nabízí

Allrisk reality & finance s.r.o.

Komárovská 20a, 61700 Brno

www.allriskreality.cz

Zobrazit kontakt na RK

Zobrazit všechny nabídky RK

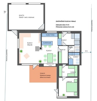
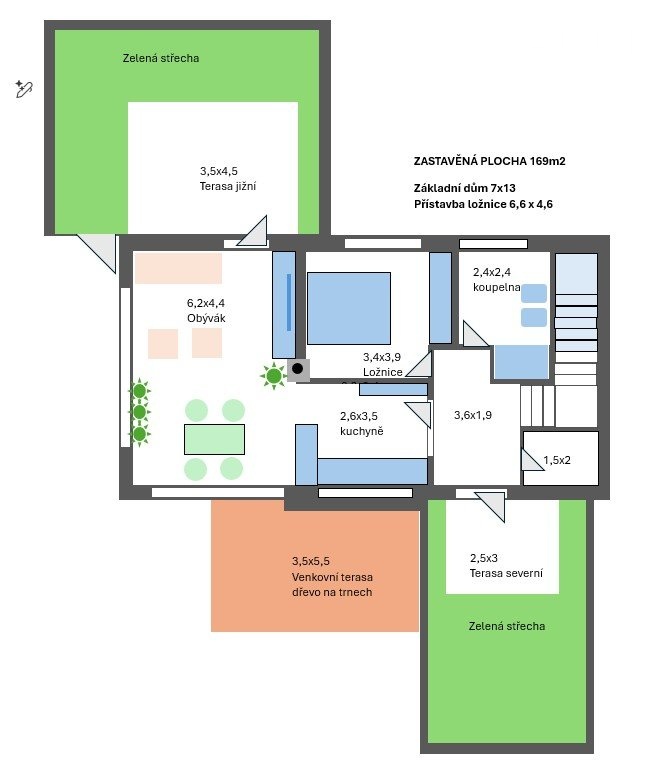
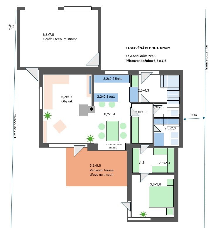
Lokalita: Jehnice, Brno - severní okraj města Rozloha pozemku: 401 m2 Přístup: z hlavní komunikace ve směru na Ořešín Popis pozemku: Předmětem prodeje je stavební pozemek vhodný jak pro rodinné bydlení, tak pro investici (např. výstavbu dvoubytového domu). 3 strany pozemku jsou oplocené, čtvrtá je vykolíkovaná Přes pozemek vede kanalizace napojená na obecní síť (nutné zapsat věcné břemeno) Možnost přímého napojení na inženýrské sítě Pozemek je u hlavní silnice, s pohodlným přístupem i parkováním v okolí Pro lepší představu přikládáme dvě architektonické studie dvoupatrového domu s garáží a dvěma bytovými jednotkami - ideální řešení jak pro rodinu, tak pro investora. Výhody lokality :Jehnice jsou klidná městská část s vesnickým charakterem a přitom výbornou dostupností do centra Brna. Mateřská a základní škola (1.-5. ročník) Veřejná doprava: autobusové linky Dopravní podnik města Brna Nejbližší železniční zastávky: Brno-Řečkovice a Česká (2,5 km) Lesy Soběšická vrchovina - ideální pro procházky, cyklistiku i relax Klidná lokalita s příjemnou komunitní atmosférou Jehnice si zachovaly původní ráz vesnice doplněný moderní výstavbou. Nenajdete tu rušný průmysl - jen přírodu, klid a dobrou dostupnost do města. Důležité informace: Rozloha pozemku: 401 m2 Možnost výstavby RD nebo domu se 2 bytovými jednotkami Kanalizace na pozemku (věcné břemeno nutno zapsat) Parkování v okolí Skvělá dopravní dostupnost Prohlídky a kontakt: Prohlídky jsou možné po předchozí domluvě. Neváhejte mě kontaktovat pro bližší informace nebo sjednání termínu. Takové pozemky v Jehnicích jsou vzácné - buďte první, kdo této příležitosti využije! Majitelé si vyhrazují právo vybrat kupujícího dle vlastních kritérií. Pokud jste si nevybrali z uveřejněné nabídky, zadejte nám prosím Vaši poptávku a my se pokusíme najít odpovídající nemovitost.



Nahoru