Makléř: Lukáš Michna
Telefon: 777 231 ...
E-mail: michna@ ...
Zobrazit celý kontaktTelefon: 777 231 222
E-mail: michna@michnareality.cz
Nemovitost nabízí
MICHNA REALITY & PARTNEŘI, s.r.o.
Sochorova 3226/40, 616 00 BRNO - ŽABOVŘESKY
Zobrazit kontakt na RK
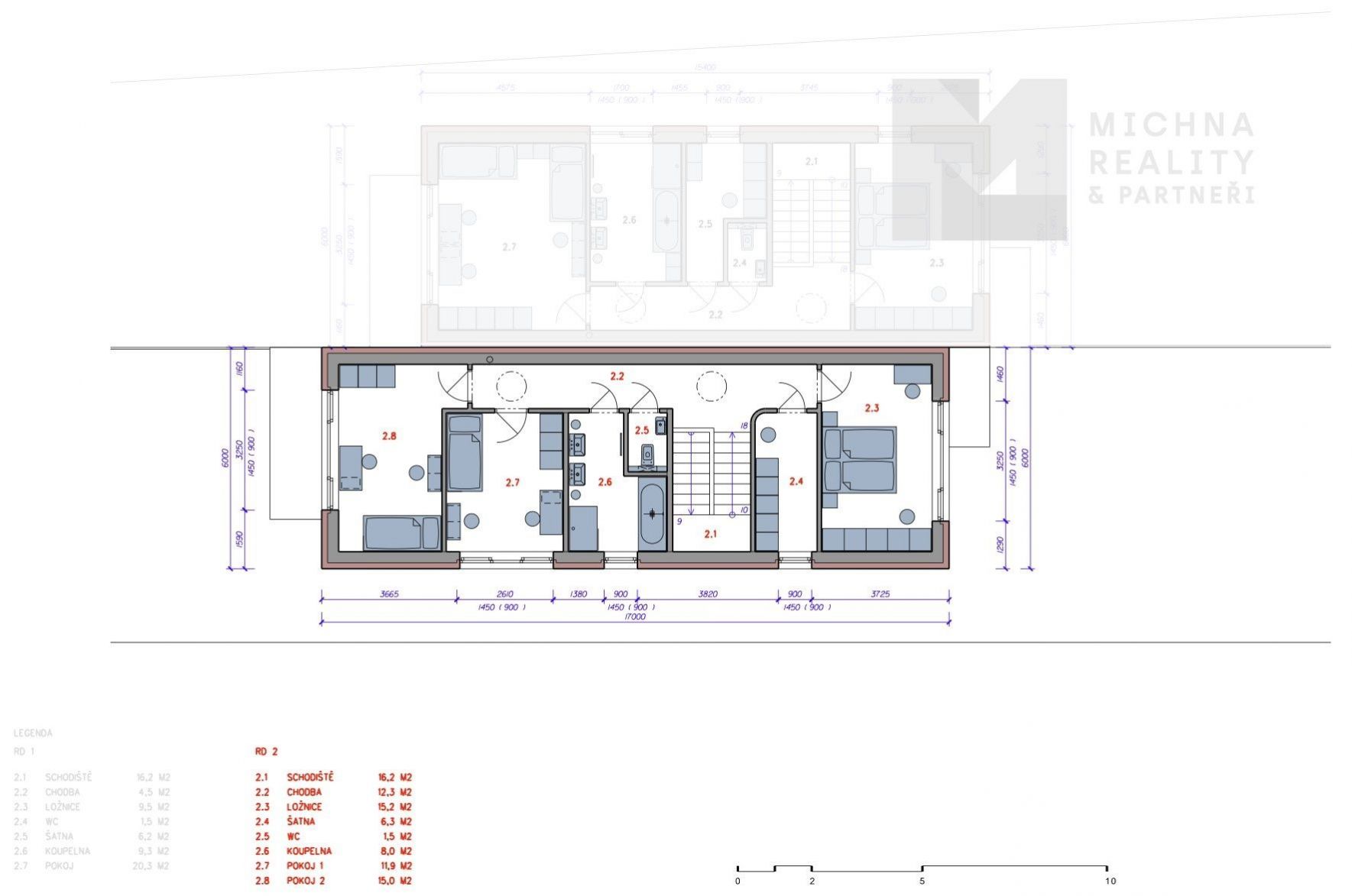
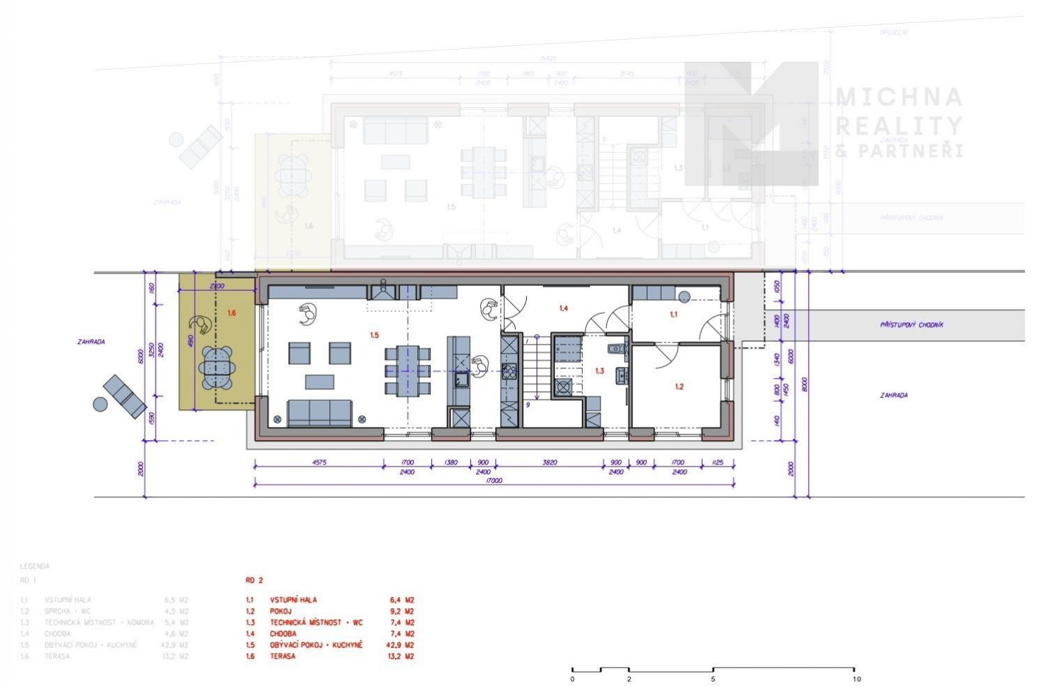
V zastoupení vlastníka nemovitosti Vám nabízíme ke koupi stavební pozemek o rozloze 882 m2, nacházejí se v žádané brněnské městské části Soběšice. Základní údaje: - šíře pozemku v místě umístění budoucí stavby 8 m - na pozemek je přivedena elektřina a voda z veřejného vodovodu - aktuálně na pozemku stojí stavba bez č.p./č.ev. o velikosti 14 m2 - přistup k pozemku po obecní komunikaci - přímý přístup do lesa Studie stavby: - v rámci regulativů územního plánu je k dispozici studie budoucí stavby v souladu se sousedskými vztahy - viz. vizualizace. Územní plán: - pozemek je v územním plánu města Brna určen k individuálnímu bydlení s regulativem zachování bydlení venkovského charakteru - v lokalitě je nutnost vybudování nové obecní komunikace a technické infrastruktury Soběšice patří mezi nejžádanější městské části Brna díky své klidné atmosféře a unikátnímu propojení přírody s městskou dostupností. Nachází se na severním okraji Brna, jen pár minut od centra, obklopená lesy a krásnými vyhlídkami na celé město. Místní část nabízí kompletní občanskou vybavenost školu, školku, restaurace, obchod i sportovní vyžití. Soběšice jsou ideálním místem pro rodinné bydlení, cyklistiku, procházky a aktivní život v blízkosti přírody, a přesto s perfektním spojením do centra Brna. Pro více informací či prohlídku nemovitosti kontaktujte realitního makléře - Lukáš Michna MICHNA REALITY & PARTNEŘI, s.r.o. <a href="https://www.eurobydleni.cz/byty/2_1/praha-4/obec-zabehlice/prodej/"><strong>Prodej bytu 2+1 Praha 4, Záběhlice</strong></a>
Prodej stavebního pozemku pro bydlení, CP 886 m2 - Brno - Slatina
Ve výhradním zastoupení nabízíme k prodeji pozemek dle územního plánu je stavební, ulice Pomezní, Brno Slatina. Momentálně je na pozemku stavba…
POZEMEK BRNOHORNÍ HERŠPICE: OSAMĚLÁ ULICE - POSLEDNÍ ŠANCE POSTAVIT SI DOMOV V SRDCI ZÁSTAVBY a ZÁROVEŇ NA OKRAJI BRNA!
Hledáte ideální místo pro váš nový rodinný dům v Brně? Představujeme vám jedinečnou příležitost, která se nebude opakovat! Prodej stavebního pozemku…
Prodej stavebního pozemku Brno-město, Soběšice na Eurobydleni.cz