Makléř: Gottwaldová Pavla
Telefon: 725 797 ...
E-mail: pavla@m ...
Zobrazit celý kontaktTelefon: 725 797 757
E-mail: pavla@metr2reality.cz
Nemovitost nabízí
Metr2 reality s.r.o.
Litovelská 1340/2C, 779 00 Olomouc
Zobrazit kontakt na RK
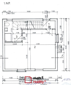
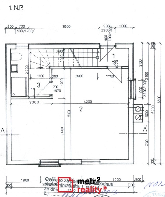
„Zažijte moře léta“, tak zní motto holiday parku Vranovská pláž. Můžeme směle dodat - „nejen léta“. Nabízíme pozemek pro novostavbu rekreační chaty v katastrálním území Štítary na Moravě v těsné blízkosti Vranovské přehrady, nazývané Moravský Jadran, situované nedaleko Vranova nad Dyjí, region Jižní Morava. Jedná se o prodej souboru nemovitostí, a to pozemku o celkové výměře 299 m2 a podílu o velikosti 1/18 na přístupové komunikaci. Jde o zcela výjimečnou nabídku. Pozemky v této oblasti vlastní zejména Lesy ČR, Povodí Moravy či soukromí vlastníci (ty se zpravidla dědí z generace na generaci, prodávají se však zřídkakdy). Pozemek je zasíťovaný (elektro přípojka, obecní vodovod i kanalizace). V ceně pozemku je projektová dokumentace a platné stavební povolení. Chata může sloužit k rodinné rekreaci nového vlastníka či jako skvělá investiční příležitost k pronájmu. Na pozemku je povolena samostatně stojící, částečně podsklepená stavba s jedním nadzemním podlažím a obytným podkrovím. Stavba bude cihelného zdiva, se dvěma monolitickými stropy a sedlovou střechou. Jako střešní krytina bude použita pálená střešní taška Brněnka, která je pro tento region víc než typická. Stavba rekreačního objektu bude mít půdorysné rozměry 7,10 x 6,80 m, výška stavby po hřeben zastřešení 7,20 m od 0,000. Zastavěná plocha chaty bude do 50 m2. Třicet km dlouhá jihomoravská nádrž s čistou a teplou vodou se nachází v překrásném údolí pod hrdým barokním zámkem Vranovem nad Dyjí. Poskytuje výborné podmínky pro koupání a vodní sporty. Kvalita vody ve Vranovské přehradě patří k těm nejlepším v České republice. Mezi rekreační služby Vranovské přehrady patří například Lodní přeprava, kterou zajišťuje loď Viktorie s 5 přístavišti po délce Vranovské přehrady. Další atrakcí je turistický vláček, který vozí pravidelně turisty z hráze přehrady do města. Milovníci turistiky a cykloturistiky mohou využít značených tras Národním parkem Podyjí, který se rozkládá až na rakouské území. K návštěvě lákají také blízké hrady Vranov, Bítov nebo Cornštejn. Na Vranovské přehradě naleznete i půjčovnu lodiček, vodních šlapadel a dalších sportovních potřeb a řadu sezónních ubytovacích a stravovacích zařízení. Výborné podmínky jsou zde také pro milovníky jachtingu či windsurfingu. Cena je konečná včetně zprostředkovatelské odměny. Pro podrobné informace prosím kontaktujte makléře RK.
Prodej, Pozemek pro stavbu RD, bytů, Dobšice
BO! Vám exkluzivně nabízí k prodeji stavební pozemek pro stavbu rodinného domu o rozloze 1021 m2 v Dobšicích, okres Znojmo. Jedná se o exkluzivní…
Medlice, stavební pozemek, 1 454 m, sítě pozemek
Nabízíme k prodeji atraktivní stavební pozemek o celkové výměře 1454 m (dle výpisu z katastru nemovitostí), nacházející se v klidné části obce…